Topic: Terminals and cables

I am facing some problems with terminals and cable symbols.
As you can see, the core colors are copied automatically for both sides of the terminals. This is not correct. The cable in my case has numbered wires. When I change them, the cores in the cabinet are changing as well. The same is true for changing them from solid line to dots.
This copying of properties of connections through the terminals is for me unwanted, but I would like to see it in the cable sign. Unfortunately here the wire is interrupted and the properties have to be added manually.

- Is it possible to remove this property copying function from the terminals?
- Is it possible to add it to the cables
- Is is possible to add information to the terminals is the element editor for automatically giving cables doted lines?

Looking forward to receive an answer on these questions.
Bastiaan

Post's attachments

Attachment icon pic5.png 79.46 kb, 1324 downloads since 2018-04-09 

2 (edited by Joshua 2018-04-09 20:16:53)

Re: Terminals and cables

As the conductor connected to a terminal block are at the same potential on both sides, the properties are propagated in every conductors of the potential.
In your case, this behavior is not the better.

b.w.v.leeuwen wrote:

- Is it possible to remove this property copying function from the terminals?

Yes when you change the properties of a conductor, uncheck "Apply properties to all conductors of this potential" at the bottom of the dialog.

b.w.v.leeuwen wrote:

- Is it possible to add it to the cables

No, unless you change the "element type" of your conductor to terminal block, but by doing this, every terminals of your cables will be seen as be the same potential.

b.w.v.leeuwen wrote:

- Is is possible to add information to the terminals is the element editor for automatically giving cables doted lines?

No

For your initial problems, you can copy the terminals element to your user collection, and edit it for change the element type to "simple" instead of "terminal block".

Développeur QElectroTech

Re: Terminals and cables

Thank you for your good explanation.

It might be workable when making wires of the type terminal. Every core of each cable has to be a separate symbol, so the potential will not be mixed-up. The same is true for all symbols in the section all-pole/connections. They share the same potential, so they have to be of the type terminal.

While making these symbols I thought, wouldn't it be nice to have a separate "element type" for wires. They have the same potential on both sides, but are in no way terminals. Making them "terminals" courses problems with the terminal block generator. In fact they are no real connections, an endpoint on witch the core is terminated, but just clarifications of the connection itself.

In the terminal-block-generator they have to be seen as "way" and not "end point". E.g. in the previous example, the first terminal is internal connected to the Motor-protection-device, point 2:T1, and at the other side to the Motor, point U1 (and not to the cable, but through the cable).

4 (edited by b.w.v.leeuwen 2018-04-24 15:07:31)

Re: Terminals and cables

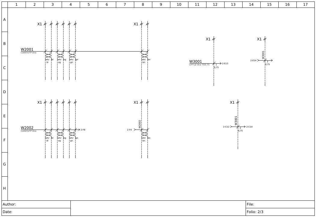
For making things easier with selecting cable's I was thinking of making a Cable database. Here the cables and cores are defined. Something like this:

Cables:
Cable Name            | Diameter | Cable Gland | Number of Cores | Art Number | Other info
YmvK-Dca 2X1,5     |      9,1    |       M20        |         2                 |   170016     |  ....
YmvK-Dca 3X1,5     |    10,2    |       M20        |         3                 |   170026     |  ....
LIYY-JZ Dca 7G0,75|     7,3    |       M16         |         7                 |   172710     | ......
Cat6F/UTP Dca       |      7,2    |       M16         |          8                |    172402    | ......

Cores:
Cable Name            | Core Id | Pair Id | Screen | Inner screen | number | color   | cross section | AWG
YmvK-Dca 2X1,5     |      1     |            |             |                     |              |  bn     |         1,5        |
YmvK-Dca 2X1,5     |      2     |            |             |                     |              |  bl      |         1,5        |
YmvK-Dca 3X1,5     |      1     |            |             |                     |              |  bn     |         1,5        |
YmvK-Dca 3X1,5     |      2     |            |             |                     |              |  bk     |         1,5        |
YmvK-Dca 3X1,5     |      3     |            |             |                     |              |  gy     |         1,5        |
LIYY-JZ Dca 7G0,75|     1      |            |             |                     |      1      |          |         1,5        |
LIYY-JZ Dca 7G0,75|     2      |            |             |                     |      2      |          |         1,5        |
LIYY-JZ Dca 7G0,75|     3      |            |             |                     |      3      |          |         1,5        |
LIYY-JZ Dca 7G0,75|     4      |            |             |                     |      4      |          |         1,5        |
LIYY-JZ Dca 7G0,75|     5      |            |             |                     |      5      |          |         1,5        |
LIYY-JZ Dca 7G0,75|     6      |            |             |                     |      6      |          |         1,5        |
LIYY-JZ Dca 7G0,75|     7      |            |             |                     |      7      |          |         1,5        |
Cat6F/UTP Dca       |      1      |      1    |    sh     |                     |      7      | wh/bl |                     |  23
Cat6F/UTP Dca       |      2      |      1    |    sh     |                     |      7      |   bl    |                     |  23
Cat6F/UTP Dca       |      3      |      2    |    sh     |                     |      7      | wh/og|                     |  23
Cat6F/UTP Dca       |      4      |      2    |    sh     |                     |      7      |   og   |                     |  23
Cat6F/UTP Dca       |      5      |      3    |    sh     |                     |      7      | wh/gn|                     |  23
Cat6F/UTP Dca       |      6      |      3    |    sh     |                     |      7      |   gn   |                     |  23
Cat6F/UTP Dca       |      7      |      4    |    sh     |                     |      7      | wh/bn|                     |  23
Cat6F/UTP Dca       |      8      |      4    |    sh     |                     |      7      |   bn   |                     |  23


When running the script each first core with cable-label will be searched for to find all different cables. For each label (W1001, W1002 etc.) a cable can be chosen from the cable database. The connected cores to the first core symbol will be filled automatically with the correct label. The cable data will be inserted in each core symbol.

Does anyone have an available script for starting with these XML searches?

Post's attachments

Attachment icon 1_diagram.png 68.35 kb, 893 downloads since 2018-04-24 

5 (edited by b.w.v.leeuwen 2018-04-24 15:26:25)

Re: Terminals and cables

Here another example of how core symbols are used to define cables

Post's attachments

Attachment icon 2_diagram.png 27.37 kb, 957 downloads since 2018-04-24 

Re: Terminals and cables

I made a script with help of the "qet_tb_1.0.2.alpha"-script to auto-number cables.

A cable is made up of a "terminal-label"-element which is placed in front of some core-elements. (The standard "Wire of cable" or "Wiring" elements can be used or any self made symbol starting with "wire_" or "cable_" in the .elmt filename.
The cable-name from the "cable label"-element is by the script automaticly copied into the next cores, as long as they are on the same level and until they are stoped by a new "cable label" element or by a cable_referenct element or a cable-termination symbol.
These last symbols are self-made. You can find them in the sample project I'll post.
Cores that are drawn separately can be coupled by using cable-reference symbols.

The project I'll post has all kind of different information in the cable-cores. After running the script, all the core's get the right cable information.

Post's attachments

Attachment icon drawing.png 71 kb, 1142 downloads since 2018-05-01 

Re: Terminals and cables

Here is the example file

Post's attachments

Attachment icon generate_example.qet 203.97 kb, 1257 downloads since 2018-05-01 

Re: Terminals and cables

And here is the script

run by:
python3 qet_parse_alpha_0.1.0.py

Post's attachments

Attachment icon qet_parse_alpha_0.1.0.py 24.4 kb, 2312 downloads since 2018-05-01 

Re: Terminals and cables

The next step will be to pre-arrange cable's. These can be chosen by using the "Article number" field. When running the script, the core-numbers-/colors will be entered in to each core.
There may be a check if all core's are used or if some core's are double used.

Re: Terminals and cables

I found a nice explanation video of making cable's. I tried to do the same, but didn't succeed. How can I do this?

Post's attachments

Attachment icon cable2.webm 520.58 kb, 1401 downloads since 2018-05-05 

11 (edited by Calypso 2018-05-05 23:24:57)

Re: Terminals and cables

Hello b.w.v.leeuwen,
I think it is a feature that was planned for version 0.60 but has not yet been recorded. There is a to do list somewhere but I did not find it.

https://qelectrotech.org/forum/viewtopic.php?id=706

 
Best regards

Stebo

Re: Terminals and cables

Hello all,

I am interested in the cable feature which is shown on one of the last videos here. I would like to ask whether there is available already some feature for cables?

Thanks.
Marek