Topic: Some Beckhoff elements
I/O are expected to be used via cross-references. All other modules should be used inline.
You are not logged in. Please login or register.
QElectroTech → Elements → Some Beckhoff elements
I/O are expected to be used via cross-references. All other modules should be used inline.
can we get also the I/O elements you designed for this?
also I see the I/O modules have no terminals
how do you plan to make your shematic?
can we get also the I/O elements you designed for this?
No idea what you mean... the zip file should contain everything I did.
how do you plan to make your shematic?
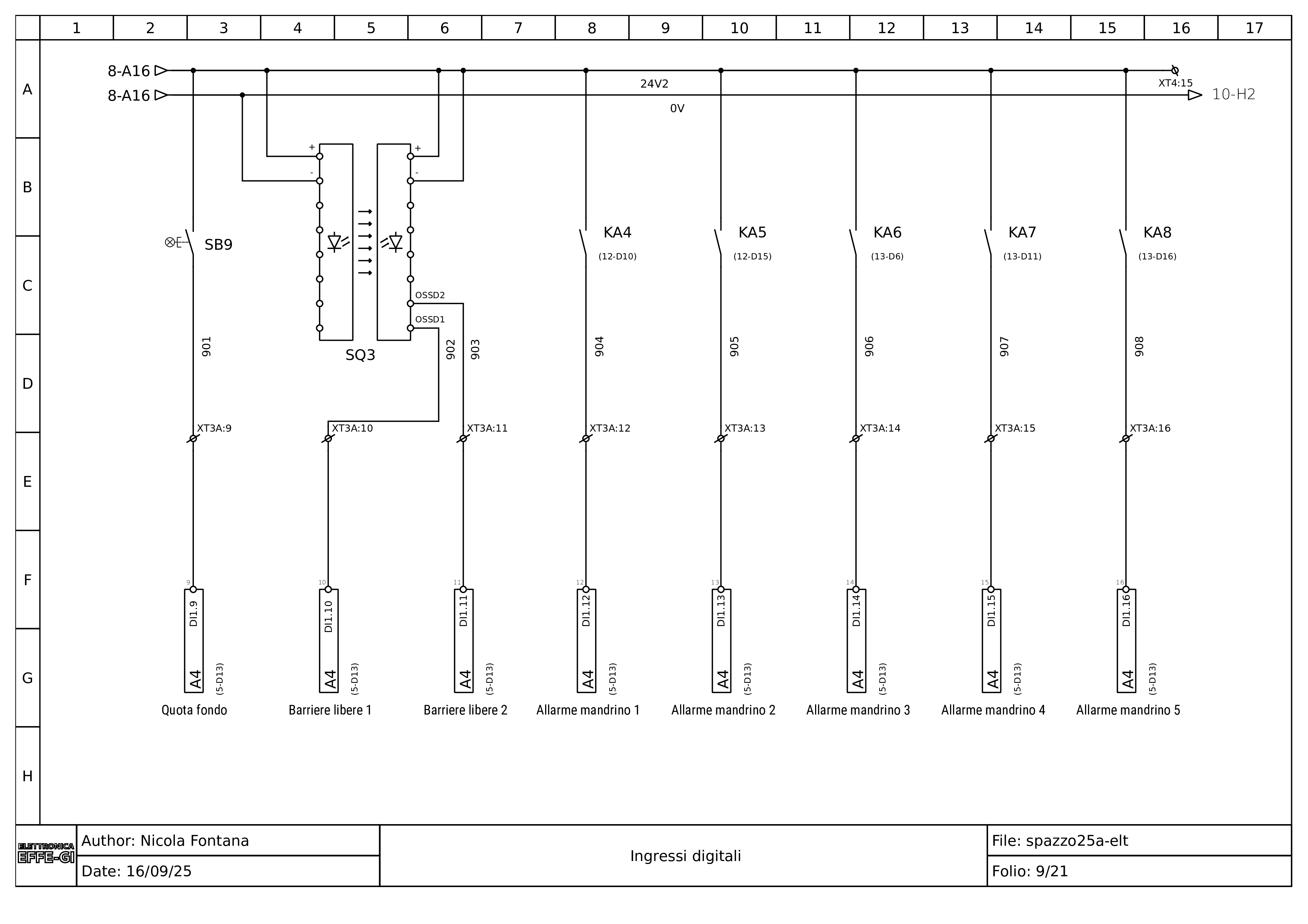
As stated above, I/O are expected to be used via cross-references. This is the way I'm used to do I/O too dense to be used with explicit terminals. Here for example is how I define the last 8 digital inputs of A4 in the above schematic:

Unfortunately I had to misuse QElectrotech a bit to achieve my goal: I'm using NO contacts for inputs and NC contacts for outputs.
I cleaned the elements, put all connections to grid.
where are the 2 slave elements you use as NO or NC ?
Here is an expample like it is done in ePlan
I cleaned the elements, put all connections to grid.
Thank you! I'll check them whenever I need to write my next schematic.
where are the 2 slave elements you use as NO or NC ?
Any valid slave element should work. I did not share them because that folder is a bit of a mess.
Anyway, in the attached archive you'll find the ones that I normally use.
QElectroTech → Elements → Some Beckhoff elements
Powered by PunBB, supported by Informer Technologies, Inc.
Generated in 0.038 seconds (37% PHP - 63% DB) with 11 queries